FlexiLiiving
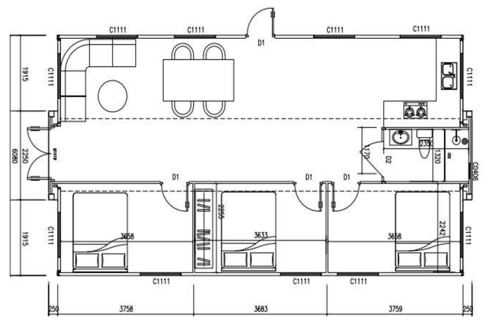
Experience the FlexiLiving 40ft Expanded Home — a spacious 72m² portable residence offering 2, 3, or 4-bedroom configurations. Thoughtfully designed with a full kitchenette, modern bathroom, and optional office or walk-in wardrobe, it delivers the perfect harmony of luxury, flexibility, and smart design — ideal for growing families or anyone seeking more room to live and thrive.
Dimensions:6.0m(L)×11.7m(W)×2.5m(H)
Area:(71.136m²)
Bedrooms:2-3
Bathrooms:1
Starting from
Including shipping costs
Share


Free furnitures included
-
Bed Option 1
-
Sofa
-
Dining Table
-
Bed Option 2
A 4-Step Process From Start to Finish
-
Step 1: Let’s Get Started
We begin with a quick chat to understand what you need — your preferred model, space, and budget. Our team helps you plan the perfect FlexiLiving setup for your lifestyle.
-
Step 2: Confirm Your Order
Once you’re happy with the plan, secure your build with a small deposit (60%). We’ll confirm your order, set the delivery date, and handle the paperwork.
-
Step 3: We Build Your Home
Your FlexiLiving unit is crafted in our factory with care and precision. The process takes around 15 weeks, and we’ll keep you updated every step of the way.
-
Step 4: Delivered & Ready to Live
When it’s ready, we deliver and install it on your site. After the final inspection and payment, your new FlexiLiving home is ready to move into — simple as that.

